20, 36 Woodcliffe Crescent, Woody Point

Offers In Excess Of $1,800,000

3 Beds 2 Baths 2 Cars Pool 173 m2

Inspect

Inspections

Saturday 21 February 11:45 AM - 12:15 PM

LUXURY APARTMENT WITHIN WATERS EDGE WITH STUNNING VIEWS AND LOW BODY CORPORATE COSTS

Experience the epitome of seaside living with this prestigious and spacious 3-bedroom residence located in Woody Point's premier waterfront locale. With the soothing sound of waves practically at your doorstep, this home offers a serene and tranquil haven that perfectly blends luxury and comfort.

Woody Point, a charming suburb on the Redcliffe Peninsula, is renowned for its stunning coastal views, vibrant community, and rich history. This apartment is a short stroll away from local shops, restaurants, cafes, medical centres, the post office, and the iconic Belvedere Hotel. Importantly, there is no road/street between you and the sea.

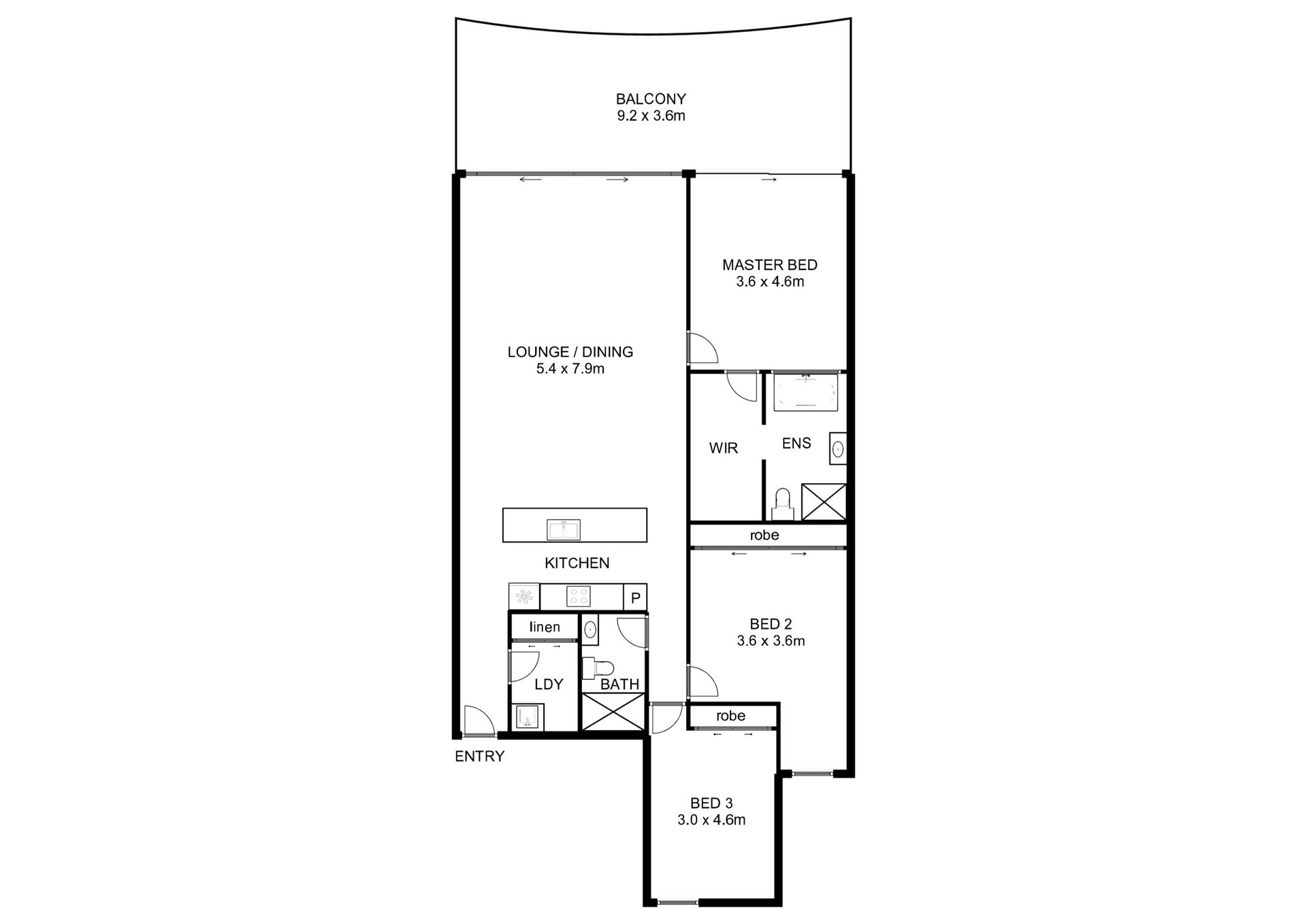
Inside, the apartment exudes elegance with high ceilings and tiled floors creating a warm and inviting atmosphere. The open plan living and dining areas boast some of the best water views, flowing seamlessly onto the expansive entertainer's balcony. Here, you can relax and take in the panoramic vistas ranging from Moreton Island to the twinkling lights of the Port of Brisbane and Brisbane City.

The kitchen is a chef's delight, featuring top-of-the-line Smeg appliances and luxurious stone finishes. The master bedroom is a true highlight, offering breathtaking ocean views, plantation shutters, a spacious walk-in robe, and a stylish en-suite bathroom complete with a luxurious soaker tub. The second and third bedrooms, each with plantation shutters and built-in robes, are thoughtfully separated from the master and share a well-appointed family bathroom.

This apartment is equipped with ducted air conditioning providing central heating/cooling throughout, ensuring comfort all year-round. Additional features include a large laundry, security entry with lift access, secure basement parking for two side-by-side car spaces with over bonnet storage lockers and a separate storage room.

Nestled in the sought-after Waters Edge complex, this unit offers unobstructed waterfront views and a host of amenities. The complex boasts a secure, gated entrance with an intercom system and a swimming pool. The pool receives great sun and would be the perfect place to relax by on a day off with a great book.

The location is simply unbeatable. Woodcliffe Crescent is a brilliant address, with Scott's Point Beach just around the corner. A less than five-minute stroll will take you to Woody Point Village, where you can enjoy a vibrant cosmopolitan lifestyle with cafes, shops, restaurants, and parks. Walking tracks, bike paths, sporting clubs, and transport options are all just moments from your front door.

This breathtaking unit is perfect for those seeking stylish seaside living in a prime location. With its captivating views, luxurious features, and unbeatable location, this is a home you need to inspect to fully appreciate. Sure to capture your heart, you may never want to leave. Don't miss out on this rare opportunity to experience the ultimate seaside lifestyle. Call Anthony today on 0457 406 810 if you have any questions.

"What the Owners say"

After purchasing the home back in 2020, we have thoroughly enjoyed living here. It also assisted with our ability to complete a lap of Australia, knowing that the apartment was secure, but also that we had somewhere special to come back to and rest at the end of it.

We had completed several improvements, which we hope the next owners will come to appreciate however we have decided it is time for our next adventure. We know the next owners will absolutely love living here!


Disclaimer:
We make no warranty or representation as to the accuracy, reliability, suitability of the information we provide and disclaim all liability and responsibility for any direct or indirect loss or damage which may be suffered by you through placing reliance on anything contained in or omitted from the information we provide. A display of advertising does not imply an endorsement or recommendation by us and you acknowledge that you must make your own enquiries to determine this validity and appropriateness of the information we provide.

Features

Balcony Outdoor entertainment area in-Ground Pool Secure Parking

Details

Address 20, 36 Woodcliffe Crescent, Woody Point
Price Offers In Excess Of $1,800,000
Property Type Residential
Property ID 982
Category Apartment
Land Area 173 m2

Share

Anthony Obee photo

Anthony Obee

0457 406 810

Cameron Coombes photo

Cameron Coombes

0480 174 235

Make an Offer